Date

Lieu

Surface

Conception

Réalisation

Photos

Programme

Matériaux

2020/2021

Puy Saint Vincent (05)

60m2

Atelier de Mai

Agencement : Atelier de Mai

©Atelier de Mai

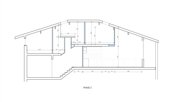
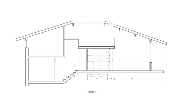
Réhabilitation complète d’un appartement à Puy Saint Vincent. La mezzanine ouverte est transformée en deux chambres fermées avec un nouvel accès côté nord.

Agencement bois : Trois-plis et bois massif épicéa, enduit à l’argile